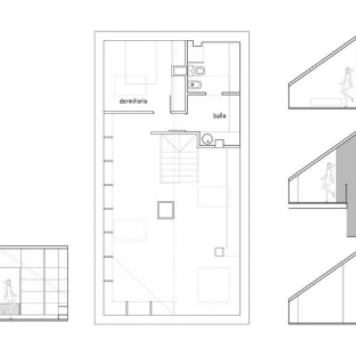
Ático en La Vega (Valladolid) 2003