Arquitecto en Valladolid para obra nueva
Proyectamos una edificación eficiente y estética para la vida real.
Vivienda Unifamiliar Zamora
El presente proyecto propone la construcción de una vivienda para una familia, un matrimonio con dos niñas, en la urbanización Espíritu Santo, en el término municipal de Zamora.
El proyecto arquitectónico pone siempre de relieve los aspectos que de singularidad tiene la obra propuesta, o al menos así debería ser, sin olvidar “nunca” lo que la rodea, esa topografía tanto natural como construida.
Pretende, ante todo, dar respuesta al programa planteado por la propiedad, y al mismo tiempo controlar el coste económico final. En definitiva, hacer útil y posible el objeto proyectado.
Pero como cualquier proyecto meditado, éste es también una toma de postura frente a ciertas circunstancias que le rodean. De ellas, las que han incidido de forma más significativa en el resultado propuesto, son las siguientes:
EL ENTORNO
El entorno define tanto la orientación como la primera intención compositiva del edificio. La urbanización se sitúa sobre una extensión de terreno prácticamente llana junto al talud que domina el valle adyacente. Este hecho condiciona la orientación de la vivienda en busca de las mejores vistas.
La proximidad de los límites medianeros al este y norte condiciona la naturaleza de la fachada de esas orientaciones, que se configuran como un paño con simples entradas de luz, no configurándose como zona abierta a vistas.
Por el contrario, la orientación en dirección de la esquina de la parcela, ligeramente oeste, cualifica los espacios de residencia dado que a lo largo de la calle que limita al oeste asegura vistas sobre el valle. El salón se sitúa en orientación suroeste-oeste disfrutando de la mejor posición respecto de las vistas.
LA FORMA
Como ya hemos señalado los condicionantes naturales, - entorno, parcela y orientación-, suponen un porcentaje importantísimo en la configuración de la solución adoptada. De ellos surge que el edificio sea compacto con una evidente configuración en L orientándose al Sur y al Oeste, por ser aquellas orientaciones las que más horas de luz van a aportar a la vida de sus habitantes.
Su geometría rectangular permite conseguir el rigor estructural que nos ayude a contener los costes y un sensato funcionamiento. Así la L se compone de dos crujías perpendiculares entre sí con forjados perpendiculares a las fachadas de mayor longitud resolviendo el encuentro entre ellos con un maclado de las plantas, que se desarrollan contrapeadas, con conexión en la zona de escaleras. Sólo para la planta sótano se añade una tercera crujía paralela a la que acoge el salón, que configura el desahogo de la planta de garaje.
En cuanto a la imagen se ha puesto especial esfuerzo en buscar una integración vernácula del conjunto sin dejarse llevar por la imitación que podría devenir en caricatura, sino más bien tratando de llegar a una esencialización del concepto filtrándolo con las enseñanzas del “estilo internacional” y sin perder de vista el tiempo en el que vivimos. La normativa que le afecta en cuanto a materiales y acabados es muy permisiva tolerando cualquier tipo de imagen final del edificio. Los clientes optaron por una vivienda con una imagen geométrica depurada que se mueve dentro del ámbito de lo construido en su entorno inmediato.
LA FUNCIÓN
El sótano acoge las funciones de garaje, trastero-taller y cuarto de instalaciones y aseo. La necesidad de posibilitar el acceso a garaje en sótano mediante una rampa de pendiente adecuada (accesible) obliga a colocar éste en la esquina más alejada de las fachadas a calle y, por estar en contacto con medianeras, a enterrarlo completamente.
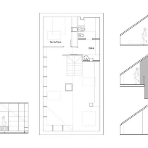
En planta baja se sitúa la zona pública de la vivienda, un recibidor con armario ropero, un baño de uso general, cocina, dormitorio-despacho y salón comedor.
En planta alta se sitúa el programa privado de vivienda, un dormitorio principal orientado al este-oeste y sur con baño y vestidor generosos, un dormitorio con orientación sureste y otros dos con orientación sur-oeste, además de un baño común para estos dormitorios.
LA PARCELA
Su forma rectangular invita a la realización de un edificio de crujías paralelas de forma en L que permita un aprovechamiento máximo de los espacios interiores ignorando las bandas “traseras” de jardín, por ser estas demasiado estrechas.
Aquí se trata de construir una vivienda que ocupe el menor desarrollo posible en planta sin desperdiciar edificabilidad, de modo que el resto quede como un jardín suficientemente amplio para ser disfrutado y vivido por los ocupantes de la vivienda.
Casa del Parque del Acebal de Garagüeta (Arévalo de la Sierra, Soria)
Se interviene sobre un solar en el que se encuentran dos viviendas interconectadas, en estado de semi-ruina, dedicadas a bar y que en su día alojaban a los maestros del pueblo.
Se pretende revitalizar el pueblo con una inversión pública. El encargo del proyecto del Centro de Interpretación del Acebal de Garagüeta lo realizó la Junta de Castilla y León. El de dirección de obra la Diputación de Soria. En un futuro el edificio será gestionado por la Junta de Castilla y León.
Estas instituciones promueven el turismo en esta zona rural, dotada naturalmente con el mayor acebal en extensión de toda Europa . La función principal del edificio, será de control e información activa para los visitantes del acebal, mostrándoles en el Centro de interpretación la historia y características del lugar, y temas relacionados con el acebo.
Se trata de un solar en bancal, en una calle en pendiente, en el que las edificaciones se encuentran retranqueadas respecto de la alineación oficial.
La parcela donde se ubicará la vivienda tiene forma eminentemente rectangular y una topografía sensiblemente horizontal. Las dimensiones son aproximadamente 20 x 21m con un pequeño anejo de 6 x 7 m a modo de exedra que remata el patio existente.
Spanish
English
Chinese